Courtesy of Amy Leong PREC*/Engel & Volkers Vancouver
MLS® # R3097869
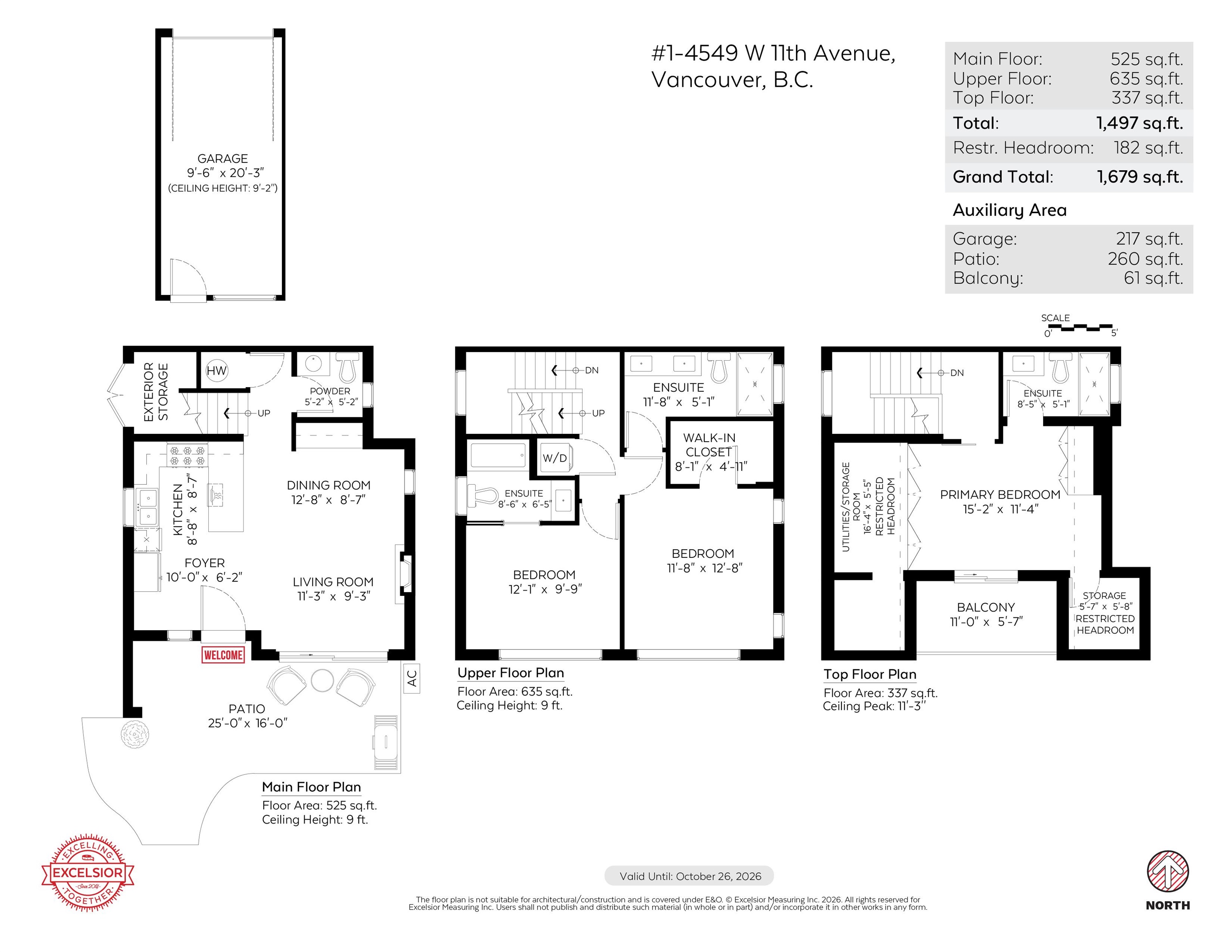
Experience refined West Side living in this brand-new front 1/2 duplex in prestigious Point Grey. Meticulously crafted with no expense spared, this home offers an open-concept layout with oak flooring, high ceilings, and designer lighting throughout. The gourmet kitchen features a full Miele appliance pkg, custom cabinetry, and durable Quartz countertops. Every bedroom incl its own private ensuite, complemented by custom millwork and elegant finishes. Enjoy radiant heating, A/C, built-in speakers, smart hom...