Courtesy of John Lim/1NE Collective Realty Inc.

3607 567 CLARKE ROAD, Condo for sale in Coquitlam Coquitlam , BC , V3J 0K7

 MLS® # R3051993

2 bedrooms

2 bathrooms

852 sqft

Sign up to View

Days on Market

Bike Room Exercise Centre Recreation Facilities Concierge Maintenance Grounds Gas Hot Water Management Sewer Snow Removal

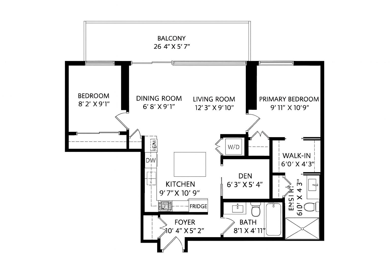
Welcome to Coquitlam's tallest and most luxurious tower. 567 Clark & Como is an absolute masterpiece built by MARCON. Perched way up on the 36th floor this spacious 2 bed 2 bath plus DEN home comes with a patio that spans the entire length of the unit. Floor to ceiling windows create light filled rooms that frame the panoramic unobstructed SW views. Premium S/S appliance package and solid quartz countertops. This perfect floor plan has bedrooms on opposite ends of the unit with open concept living and dinin...

Read More

Essential Information

  • MLS® #
    R3051993
  • Half Baths
    2
  • Year Built
    2021
  • Property Type
    Multi Family
    Residential Attached
  • Building Type
    Apartment/Condo
  • MLS® #
    R3051993
  • Half Baths
    2
  • Year Built
    2021
  • Property Type
    Multi Family, Residential Attached
  • Building Type
    Apartment/Condo
  • MLS® #
    R3051993
  • Half Baths
    2
  • Year Built
    2021
  • Property Type
    Multi Family
    Residential Attached
  • Building Type
    Apartment/Condo

Community Information

  • Area
    Coquitlam
  • Sub-Area/Community
    Coquitlam West
  • Postal Code
    V3J 0K7
  • Area
    Coquitlam
  • Sub-Area/Community
    Coquitlam West
  • Postal Code
    V3J 0K7
  • Area
    Coquitlam
  • Sub-Area/Community
    Coquitlam West
  • Postal Code
    V3J 0K7

Services & Amenities

  • Amenities
    Bike Room
    Exercise Centre
    Recreation Facilities
    Concierge
    Maintenance Grounds
    Gas
    Hot Water
    Management
    Sewer
    Snow Removal
  • Amenities
    Bike Room, Exercise Centre, Recreation Facilities, Concierge, Maintenance Grounds, Gas, Hot Water, Management, Sewer, Snow Removal
  • Amenities
    Bike Room
    Exercise Centre
    Recreation Facilities
    Concierge
    Maintenance Grounds
    Gas
    Hot Water
    Management
    Sewer
    Snow Removal

Interior

  • Basement
    false
  • Storeys
    49
  • Floor Area Fin - Main Flr
    852
  • Floor Area - Grand Total
    852
  • Basement
    false
  • Storeys
    49
  • Floor Area Fin - Main Flr
    852
  • Floor Area - Grand Total
    852
  • Basement
    false
  • Storeys
    49
  • Floor Area Fin - Main Flr
    852
  • Floor Area - Grand Total
    852

Additional Info

  • Strata Maintenance Fees
    523.89
  • Title
    Freehold Strata
  • Site Influences
    false
  • Strata Maintenance Fees
    523.89
  • Title
    Freehold Strata
  • Site Influences
    false
  • Strata Maintenance Fees
    523.89
  • Title
    Freehold Strata
  • Site Influences
    false

$868,800

3607 567 CLARKE ROAD

Schedule Tour
Contact Agent

$3957/month
Est. Monthly Payment
$
$
%
Learn More