Courtesy of Neal Sikkes PREC*/Stilhavn Real Estate Services

310 1466 PEMBERTON AVENUE, Condo for sale in Squamish Squamish , BC , V8B 0K1

 MLS® # R3067565

2 bedrooms

2 bathrooms

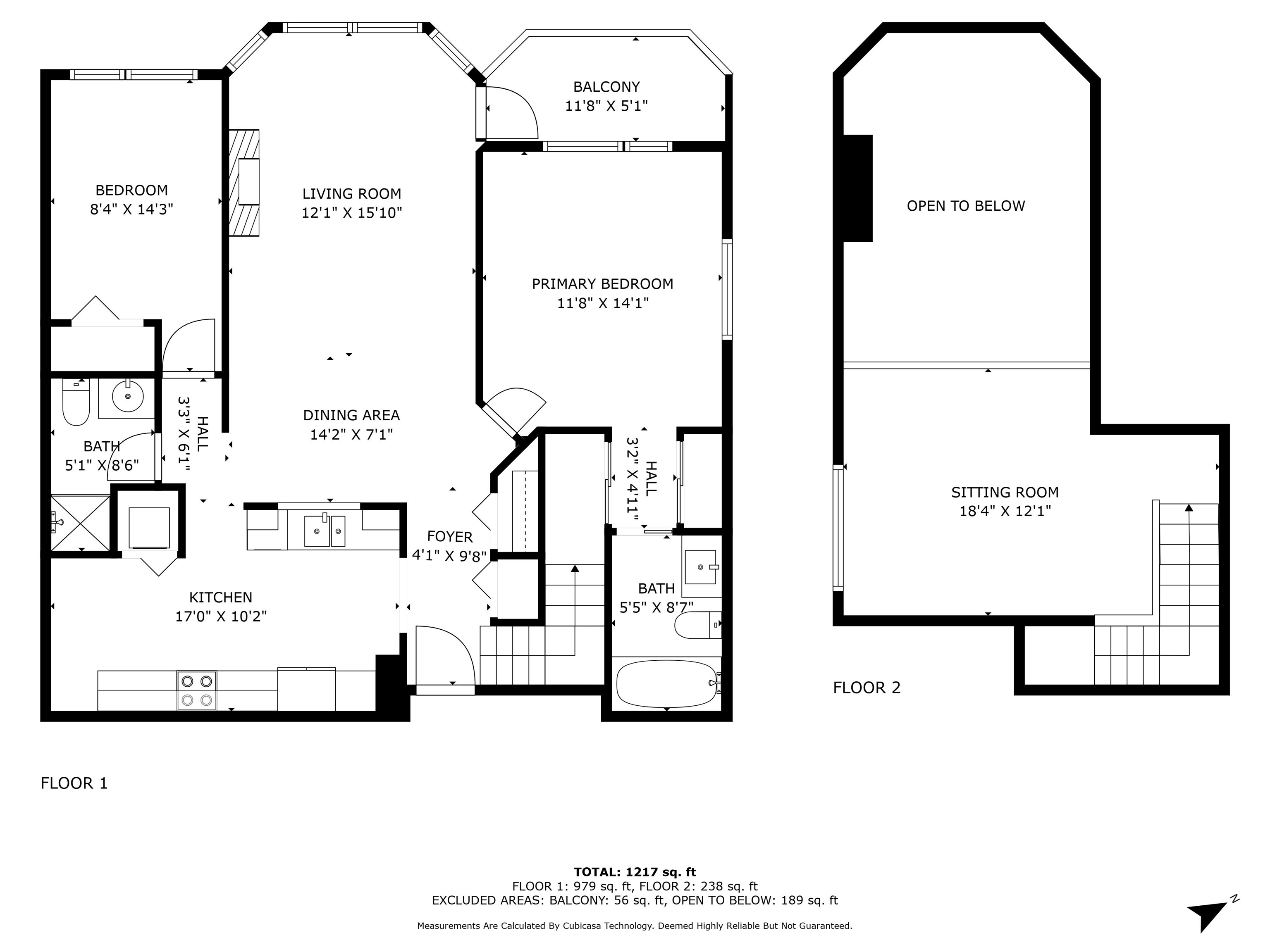
1,280 sqft

Sign up to View

Days on Market

Exercise Centre Trash Maintenance Grounds Gas Management Recreation Facilities RV Parking Sewer

This beautifully updated condo lives more like a townhouse, offering two spacious bedrooms plus a versatile loft with vaulted ceilings and a built-in Murphy bed. The unique layout is bright and inviting, with mountain views framed by oversized windows and the warmth of a new high-efficiency gas fireplace. Fresh paint, modern vinyl flooring, plush carpet, and a custom desert mural add style and character throughout. The kitchen features a new refrigerator and oven, ready for everyday living or entertaining. ...

Read More

Essential Information

  • MLS® #
    R3067565
  • Full Baths
    2
  • Year Built
    1998
  • Property Type
    Multi Family
    Residential Attached
  • Building Type
    Apartment/Condo
  • MLS® #
    R3067565
  • Full Baths
    2
  • Year Built
    1998
  • Property Type
    Multi Family, Residential Attached
  • Building Type
    Apartment/Condo
  • MLS® #
    R3067565
  • Full Baths
    2
  • Year Built
    1998
  • Property Type
    Multi Family
    Residential Attached
  • Building Type
    Apartment/Condo

Community Information

  • Area
    Squamish
  • Sub-Area/Community
    Downtown SQ
  • Postal Code
    V8B 0K1
  • Area
    Squamish
  • Sub-Area/Community
    Downtown SQ
  • Postal Code
    V8B 0K1
  • Area
    Squamish
  • Sub-Area/Community
    Downtown SQ
  • Postal Code
    V8B 0K1

Services & Amenities

  • Amenities
    Exercise Centre
    Trash
    Maintenance Grounds
    Gas
    Management
    Recreation Facilities
    RV Parking
    Sewer
  • View
    true
  • Amenities
    Exercise Centre, Trash, Maintenance Grounds, Gas, Management, Recreation Facilities, RV Parking, Sewer
  • View
    true
  • Amenities
    Exercise Centre
    Trash
    Maintenance Grounds
    Gas
    Management
    Recreation Facilities
    RV Parking
    Sewer
  • View
    true

Interior

  • Basement
    false
  • Storeys
    2
  • Floor Area Fin - Main Flr
    1040
  • Floor Area - Grand Total
    1280
  • Fireplaces
    true
  • Basement
    false
  • Storeys
    2
  • Floor Area Fin - Main Flr
    1040
  • Floor Area - Grand Total
    1280
  • Fireplaces
    true
  • Basement
    false
  • Storeys
    2
  • Floor Area Fin - Main Flr
    1040
  • Floor Area - Grand Total
    1280
  • Fireplaces
    true

Additional Info

  • Strata Maintenance Fees
    631.26
  • Title
    Freehold Strata
  • Features Included
    Gas
  • Site Influences
    Central Location
    Marina Nearby
    Recreation Nearby
    Ski Hill Nearby
  • Storeys in Building
    3
  • Strata Maintenance Fees
    631.26
  • Title
    Freehold Strata
  • Features Included
    Gas
  • Site Influences
    Central Location, Marina Nearby, Recreation Nearby, Ski Hill Nearby
  • Storeys in Building
    3
  • Strata Maintenance Fees
    631.26
  • Title
    Freehold Strata
  • Features Included
    Gas
  • Site Influences
    Central Location
    Marina Nearby
    Recreation Nearby
    Ski Hill Nearby
  • Storeys in Building
    3

$839,000

310 1466 PEMBERTON AVENUE

Schedule Tour
Contact Agent

$3821/month
Est. Monthly Payment
$
$
%
Learn More