Courtesy of Derek Kai PREC*/Rennie & Associates Realty Ltd.
MLS® # R3053514
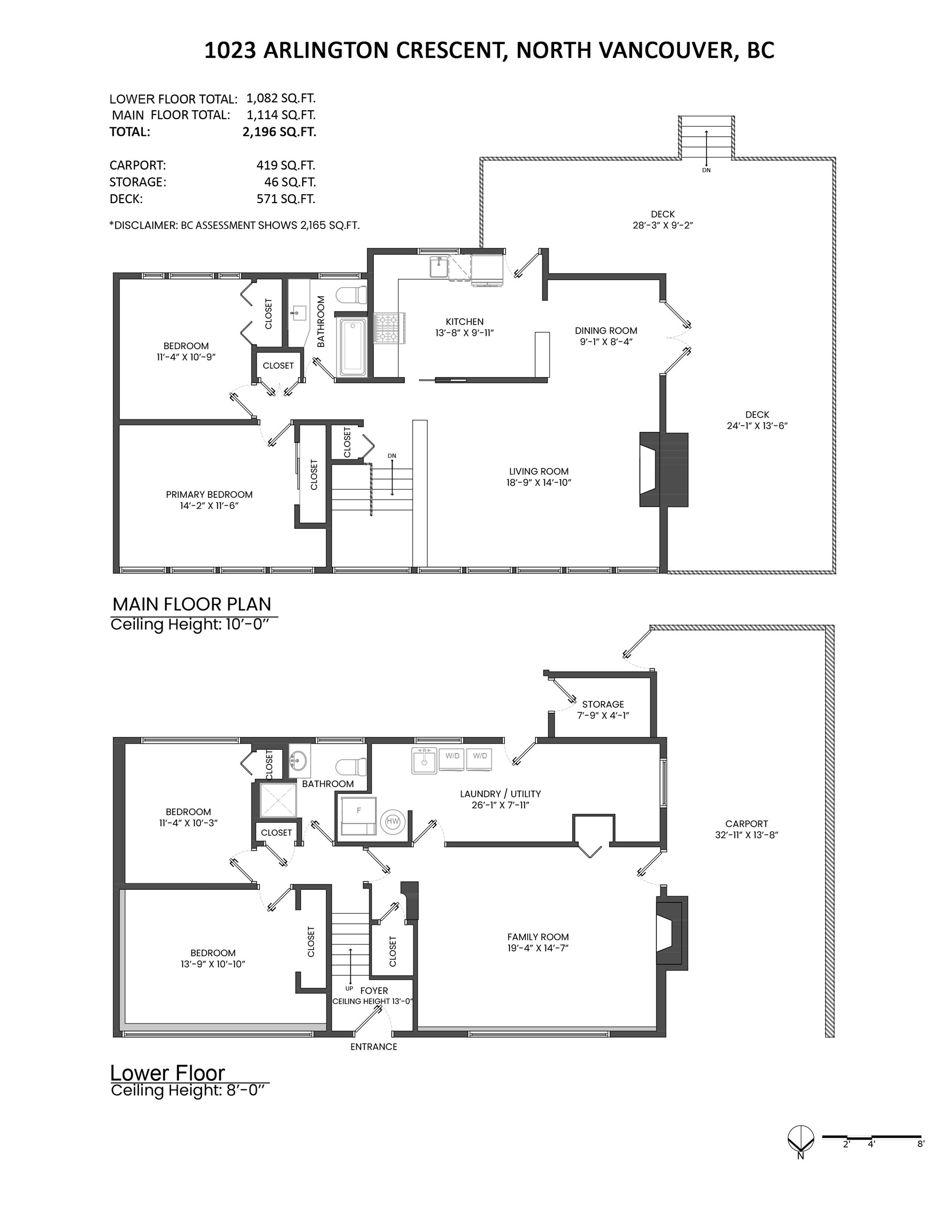
Don’t miss your opportunity on this Post and Beam home on a 8,500 square foot SOUTH facing lot just steps from Edgemont Village. This is a renovator or developer’s dream on one of the most sought-after QUIET streets perched above Edgemont Village. Two level home offers plenty of renovation possibilities with 4 bedrooms 2 bathrooms and a huge deck off the kitchen and a private flat yard with plenty of sunlight allowing for a gorgeous lawn, play area for the kids, vegetable garden and so much more! Short w...